
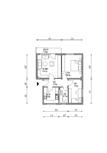
Diese gepflegte 3-geschossige Wohnanlage befindet sich in ruhiger Lage von Dortmund-Wickede. Sie bietet Ihnen schöne 3-Zimmerwohnungen, die über einen attraktiven Grundriss und einen großzügigen Balkon mit Blick in den Gemeinschaftsgarten verfügen.
Die Bäder wurden komplett renoviert und sind mit weißen Sanitärobjekten und Handtuch-Badheizkörper versehen. Weiße Eschedekor-Innentüren sorgen für ein freundliches Ambiente. Eigene Mieterkeller, ein allgemeiner Wasch- und Trockenraum sowie einen separater Fahrradkeller stehen Ihnen zur Verfügung.
Das Wohnumfeld zeichnet sich durch eine angenehme Wohnbebauung aus.
Supermärkte, Ärzte und Apotheken befinden sich in Ihrem Wohnumfeld. Kindergarten und Grundschule sind fußläufig erreichbar. Die weiterführenden Schulen sind bequem mit dem Fahrrad oder der S-Bahn zu erreichen. Der S-Bahnhof befindet sich in unmittelbarer Nähe. Von dort gelangen Sie bequem in die Stadtzentren von Dortmund und Unna.
Energieverbrauchskennwert 98,0 kWh/(m²a), Warmwasser enthalten, Energie Gas
Referenznummer
3533 0002
100,00 € Betriebkosten
50,00 € Heizkosten
15,00 € Stellplatz
1.275,00 € Kaution
Ihr Ansprechpartner:

Weitere Informationen erhalten Sie nach Anfrage unter Angabe der Referenznummer: 3533 0002
Bilder


